| -->nach unten <--Schwertransport | | [1929] |1929 | [1938] | [1939] | [1944] | [1945] | [1949] | [1951] | [1953] |
M e i l e n s t e i n e d e
r S c h w e r t r a n s p o r t t e c h n i k
Die Schwerlast-Fahrzeuge als kleiner Teil der Fahrzeugentwicklung
1929 Scammell "100-Tonner" ("The Hundred-Tonner") |
|
|
©by Hulton Archive |
Schwere zweiachsige Sattelzugmaschine mit zwei angetriebenen Pendelachsen in einer Achslinie als Hinterachse und zweiachsigem Auflieger mit Hinterachs-Handlenkung für rund 100 t Nutzlast. |
hier nach dem Umbau auf
verbrauchsgünstigen Gardner-6-Zylinder-Diesel |
|
©by HULTON GETTY ARCHIVE |
Der erste Scammell 100-Tonner wurde 1929 für M.R.S. Marstons Road Service gebaut (Registration-No. KD 9168). Das Fahrzeug wurde ca. 1937 von M.R.S. verkauft an Norman E. Box Ltd. of Liverpool und kam ca. 1949 dann zu Pickfords. Die Scammell Zugmaschine KD 9168 ist im British Commercial Vehicle Museum in Leyland / UK ausgestellt. Der zweite Scammell 100-Tonner wurde im Februar 1930 an H.E. Whey Ltd. of Dartford geliefert. Dieses Fahrzeug wurde 1934 an Pickfords verkauft und dann als BLH 21 registriert. Das zweite Fahrzeug soll immer noch unrestauriert stehen bei Rush Green Motors, Codicote, Herfordshire. |
Ursprüngliche Version mit
kleinem 4-Zylinder-Benzin-Motor |
|
©by HULTON GETTY ARCHIVE |
Der erste Scammell 100-Tonner, gebaut für M.R.S. Marstons Road Service (Registration KD 9168), hier mit kleinerem Sattelauflieger für ca. 60 ton Nutzlast. |
|
|
|
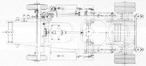
Die Fahrgestell-Zeichnung des ersten Scammell 100-Tonner, gebaut für M.R.S. Marstons Road Service (Registration KD 9168), hier noch mit der kurzen Motorhaube für den Vierzylinder Benzinmotor. |
| <--nach oben <--Schwertransport | | [1929] |1929 | [1938] | [1939] | [1944] | [1945] | [1949] | [1951] | [1953] |